casa at2| viña del chiche

Tumbaco, Pichincha.

700 m².

Casa unifamiliar.

AT2: El confort como evento familiar

Una casa adquiere significados diferentes para sus habitantes, según el momento en que esta llega a formar parte de sus vidas.  En el caso de la casa AT2, esta llega a sus propietarios como la culminación de una vida exitosa. Es el reflejo y la recompensa por las metas alcanzadas.

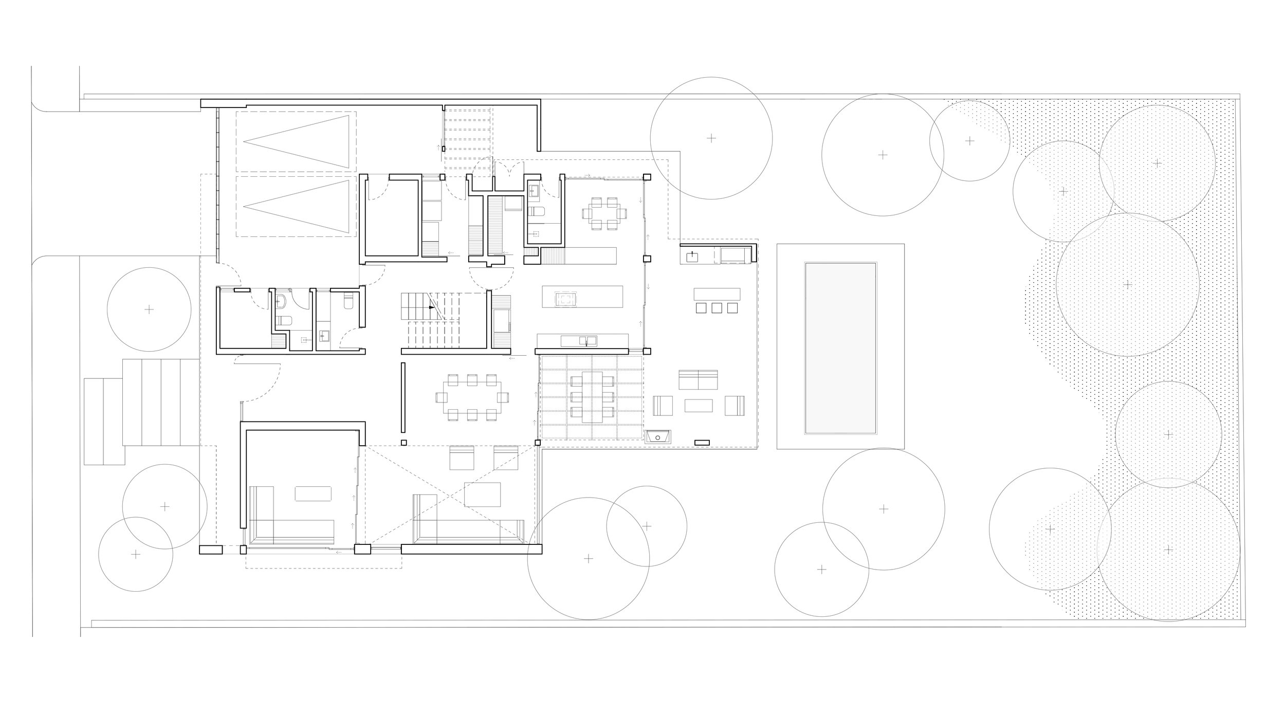
La AT2 ha sido concebida para ser el epicentro familiar. Su misión es congregar a hijos y a nietos. Está en el contexto suburbano de los valles orientales de Quito; cerca de la quebrada del río Chiche y disfruta de las excelentes condiciones climáticas del sector. El lote que la contiene está entre medianeras, lo cual hace que dependa de sus propios espacios para generar visuales agradables. Esto reduce además sus vistas panorámicas hacia el frente.  

La fachada frontal de la AT2 es elegante y reservada. Pocas son las aperturas frontales que reaccionan ante el paisaje circundante. De hecho, la permeabilidad de la vivienda es progresiva. Gran parte de las ventanas y lucernarios se concibieron para generar espacios iluminados y cálidos. Los muros de las esquinas se perforan con ese mismo propósito. El carácter familiar de esta residencia se establece con aperturas y vacíos cada vez más grandes, a medida que uno se dirige a la privacidad del patio posterior. El gran remate de esta cadencia es la desmaterialización de su volumetría. Los espacios abiertos a la piscina quedan insinuados por planos y líneas. El porche funciona como el punto de reunión familiar. La mayor parte de la vida entre anfitriones e invitados se da aquí, donde la frontera entre interior y exterior se vuelve casi invisible.

Los interiores de este proyecto se organizan de manera ordenada y sencilla, mediante la disposición de cuatro naves paralelas de hormigón y metal, con pinceladas de madera. En esta materialidad, que se equilibra sabiamente con interiores amplios e iluminados, se desarrolla un programa agradable y fluido, para permitir una cotidianidad confortable a los dos habitantes permanentes de la casa.

La cocina articula tanto exteriores, como interiores. Se conectan a ella los espacios informales, como el porche y un comedor de diario. De igual manera, lo hacen el comedor formal y la sala con su doble altura. Se denota así el valor que sus usuarios le dan a los momentos familiares; sin descuidar el rigor y la etiqueta que se requiere en ocasiones especiales.

La AT2 es una obra arquitectónica de permeabilidad selectiva. Abierta para aquellos que acoge en su interior; y cerrada de manera formal y elegante para preservar así su intimidad. La forma en que la luz define sus interiores logra un interesante balance con lo macizo de sus materiales. Es precisión, protección y bienestar. El marco perfecto para que vivir y disfrutar se fusionen en un solo acto.

 

tipología

arquitectura + construcción

créditos

cliente: familia AT.
equipo del proyecto: Felipe Palacios, Johann Moeller, Jaime Andrade, Alegría Bermeo.
año: 2021 - 2022

fotografía: JAG studio

Previous
Previous

casa doble soga

Next
Next

tintoblanco winebar & shop